
Tour of the Renovation
Click here for a detailed description of the church in our Commemorative Dedication Journal.

As soon as you enter our newly renovated Church, you will be mesmerized. Looking up, you will notice a row of stained glass windows (or clerestory windows) depicting the Apostles’ Creed in symbols.
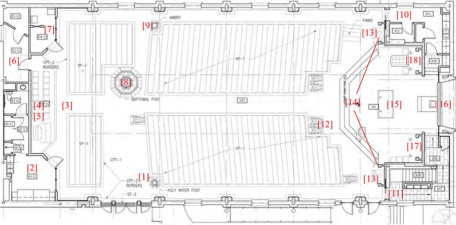
On your right, you will notice our marble Holy Water Font, [1] and on your left, the main Sacristy identifiable by the image of Mary holding the baby Jesus and a lamb etched on a glass wall. [2] (A Sacristy is a room for keeping vestments, other church furnishings and sacred vessels and is where priests prepare for services.) Just past the Sacristy, you will see our refurbished organ and new choir area positioned on the same level as the congregation to permit better sound projection and interaction between the congregation and the Music Ministers. [3] Behind the choir area, you will observe the Risen Christ against a birch wood paneling. [4] Above the Risen Christ is a beautiful stained glass window of the Assumption of Mary; [5] and below the Risen Christ is a Scriptural passage inscribed in brass from John 20:29, “Blessed are those who have not seen and have believed.” Housed behind the choir area is an altar servers’ room containing the Insignia of the Alagad ni Maria in stained glass [6] and just beyond the choir area is our reconciliation room identifiable by the image of Christ, the Good Shepherd, holding a baby lamb etched on a glass wall. [7]
Turning to your right, you will observe that our pews are positioned to create an overall warm atmosphere for worshiping the Lord, light-weight padded kneelers and the flooring comprised of wood-toned porcelain tiles. You will also notice a couple of breaks in the pews, one for our marble Baptismal Font that depicts selected events from salvation history [8] and the other for our glass enclosed Ambry that holds the special oils used in various services. [9]
As you continue to explore our Church, the beautiful wooden arches supporting the raised roof, the custom-made lighting fixtures on the arches and hanging from the ceiling, the accent lighting throughout the Church, the colorful stained glass windows reflecting Biblical scenes of the Seven Sacraments and the bronze Stations of the Cross will come into view. If you cast your eyes downward, you will find yourself walking on our custom-made two-toned red and gold carpet that runs down the center aisle between the pews towards our Sanctuary.
As you walk down the center aisle, if you look to the far left of the Sanctuary, you will notice a mahogany sliding door that leads to our small Sacristy, which is used for daily Masses, [10] and a baby grand piano. If you choose to enter the Sacristy, you will observe a beautiful stained glass window of the Annunciation of the birth of Christ by the Angel Gabriel to Mary. If, instead, you venture to the far right of the Sanctuary, you will discover a door that leads to a ramp for handicapped access to the Church and the Altar and a stained glass window of Christ washing the feet of the Apostles. [11] Just in front of the ramp, you will find a specialized area for wheelchairs and pews that has been accommodated with additional width. [12] On your way to the ramp, you will have come across the marble statues of Mary and Joseph, against gold leaf wood panels carved to simulate flowing water, centered on either side of the Sanctuary outlined with rojo alicante marble. [13] If you look up above each of the shrines of Mary and Joseph, you will discover projector screens. [14]
In the middle of the Sanctuary, you will be awestricken by the main Altar area. [15] Embracing the Altar area on three sides, you will see blanco sivec marble tiled steps outlined with rojo alicante and bottachino classico marble trim leading up to our Altar, Tabernacle and Ambo (i.e., Pulpit) against the backdrop of a magnificent floor to ceiling stained glass window of the Risen Christ ascending to heaven. [16] You will observe that the marble white and rose columned Altar depicts the image of the Lamb of God, the coat of arms of St. Pius X, and the twelve Apostles; and our Ambo for proclaiming the Word of God has the symbols of the four evangelists and the Holy Spirit carved on it. You will notice the crucifix to the right of the Ascension stained glass window against gold leaf wood panels carved to simulate flowing water [17] and to the left of the window some of our wooden liturgical furniture. [18] (Please see Liturgical Items for detailed explanations of many of the liturgical features of our Church.)
Year at a Glance
View a calendar of events for the entire year.
Click here.
Participate
Become a member of the Church of Saint Pius X Family.
Click here.
Volunteer
Volunteer and help…
… during the liturgy.
… in the Church Community.
… in an outreach project.
Renovation
See how our church has changed, and continues to be improved.
Click here.

